• PTO Gear Shift Lever: “OFF”
• Range Gear Shift Lever: “Forward” or “Reverse”
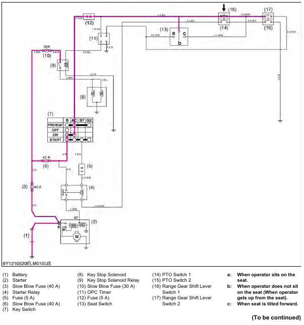
• Seat: “When Operator Does Not Sit on the Seat”


As shown in the above electric circuit, the battery voltage does not flow to the key stop solenoid. And the pulling
and the holding coil in the key stop solenoid is not electrical magnet. The spring in the key stop solenoid pushes the
push rod and the injection pump control rack to “0” fuel injection position. And the engine stops immediately.