• PTO Gear Shift Lever: “ON”
• Range Gear Shift Lever: “Neutral”
• Seat: “When Operator Gets Up from the Seat”


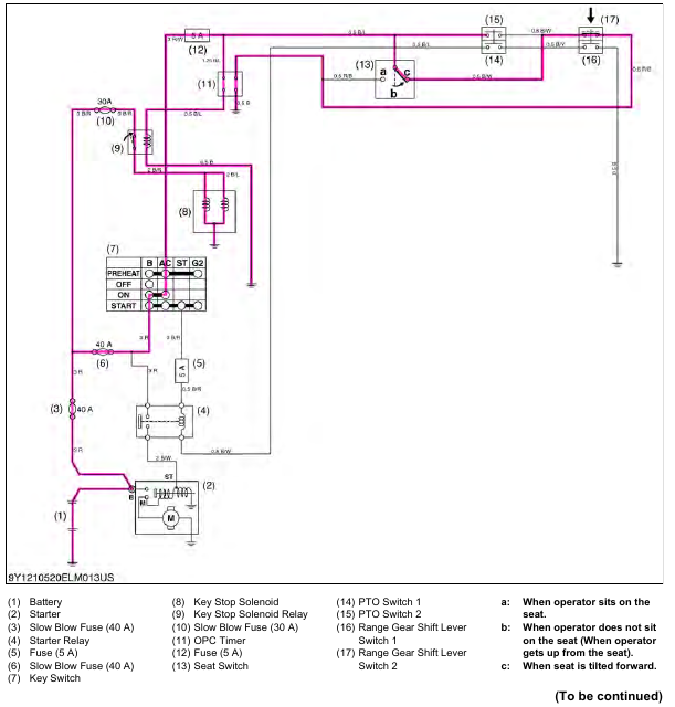
As shown in the above electric circuit, the battery voltage flows to the key stop solenoid. And the pulling and the
holding coil in the key stop solenoid is electrical magnet. The spring in the key stop solenoid is pulled, the key stop
solenoid rod does not push the injection pump control rack to “0” fuel injection position. And the engine still runs.